Attraktives Baugrundstück in unmittelbarer Strandnähe von Vodice-Srima

in

 

Details                                               Objekt-ID.7013

 

Standort:                                            Vodice-Srima

Transaktionen:                                   Verkauf

Immobilien-Typ:                                 Baugrundstück

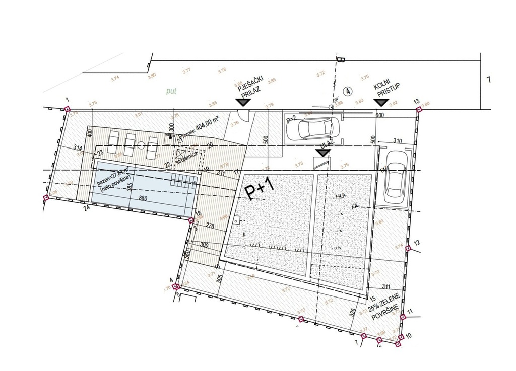
Grundfläche:                                      404 m²

Entfernung zum Meer:                       180 m

 

Kaufpreis:                                         € 180.000,-

                                                           ========= 

 

 

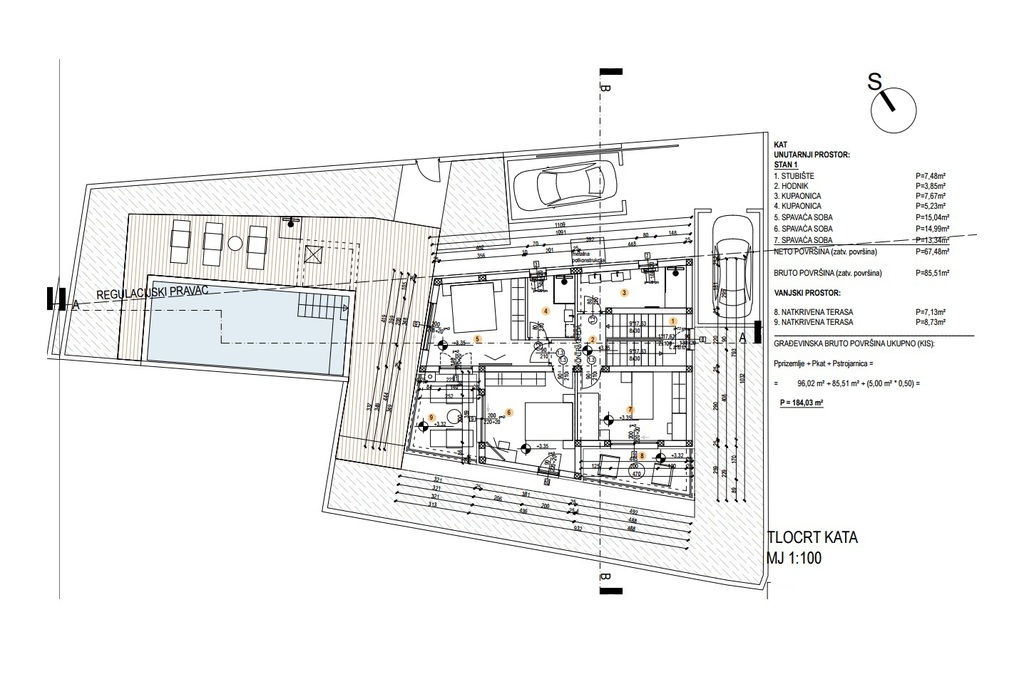
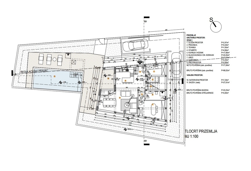
Objektbeschreibung:

 

In ruhiger Lage von Srima, nur 180 m vom Strand entfernt, befindet sich ein Bau-

grundstück mit einer Fläche von 404 m².

 

Das Grundstück hat eine regelmäßige Form, ist eben und auf drei Seiten mit einer

Betonmauer eingefasst. Die gesamte öffentliche Infrastruktur befindet sich in un-

mittelbarer Nähe.

 

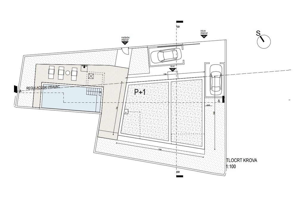
Für das Grundstück wurde eine Baugenehmigung für die Errichtung eines frei-

stehenden Objekts (Erdgeschoss + Obergeschoss) mit einer Bruttogesamtfläche

von 157 m² sowie einem 27 m² großen Pool erteilt.

 

Der Baubeginn kann sofort nach dem erfolgten Ankauf des Grundstücks erfolgen.

 

Die Entfernung zum Ortszentrum beträgt 450 m.

 

Genehmigungen:

 

Baugenehmigung/ Baugelände, Bauzone, Baugrundstrück, Zweck: Wohnbebau-

ung.

 

Sonstiges: 

 

Der Übernahme des Grundstücks kann kurzfristig nach dem Erwerb und nach Ab-

sprache erfolgen.

 

Wir bieten ausserdem Hilfestellung bei Behördenwegen, sowie eine Kaufabwick- lung in deutscher, englischer und kroatischer Sprache.

 

Eine Besichtigung der Immobilie ist nur mit Unterzeichnung des Maklervertrags zum Schutz des Eigentümers vor Besuchen durch nicht registrierte Personen und in Übereinstimmung mit dem Datenschutzgesetz und dem Immobilienmaklerge-

setz möglich.