Bezugsfertige 2-ZKB-Wohnung mit kleinem Garten in Zaboric bei Sibenik

 

 

Details                                               Objekt-ID.411

 

Standort:                                             Zaboric/Sibenik-Okolica

Transaktionen:                                    Verkauf

Immobilien-Typ:                                  Wohnung

Nutzfläche:                                         44,34 m²

Terrassenfläche:                                 24,62 m²

Anzahl der Zimmer:                            2

Schlafzimmer:                                    1

Badezimmer:                                      1

Etage:                                                 1

Etagen:                                               2

PKW-Stellplätze:                                1

Energieklasse:                                    A+

Baujahr:                                              2025

Entfernung zum Meer:                        200 m

 

Kaufpreis:                                          € 179.000,-

                                                            =========

 

 

 

Objektbeschreibung:

 

in Zaboric nur 200 m vom Kiesstrand entfernt wird eine sofort bezugsfertige Zwei-

zimmerwohnung mit kleinem Garten zum Kauf angeboten.

 

In einer äusserst attraktiven Lage von Zaboric, nur 200 m vom gepflegten Strand

und 300 m vom Ortszentrum entfernt, befindet sich eine moderne Zweizimmer-

wohnung im Erdgeschoss eines hochwertigen Neubaus.

 

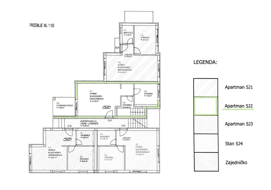
Die gesamte Nutzfläche der Wohnung beträgt 44,34 m². Sie ist nach Osten und

Westen ausgerichtet und liegt im Erdgeschoss eines Mehrfamilienhauses.

 

Die Wohnung besteht aus einer Küche, einem Essbereich und einem Wohn-

zimmer.mit direktem Ausgang zur überdachten Terrasse von 5,82 m², an die

sich ein kleiner Blumengarten von 4,93 m² anschließt.

 

Ausserdem gibt es einen Flur, ein Badezimmer und ein Schlafzimmer mit Zugang

zum gepflasterten Hof/Terrasse von 24,62 m², ein perfekter Ort zum entspannen.

 

Die Wohnung ist vollständig fertiggestellt, sofort bezugsfertig und mit hochwertigen

Materialien und Ausstattung versehen.

 

Moderne Keramik, Fußbodenheizung mit Wärmepumpe in der gesamten Wohn-ung elegante Sanitäranlagen, PVC-Fenster mit Rollläden, einbruchsichere Ein-

gangstür sowie Klimaanlagen im Wohnzimmer und Schlafzimmer. Zur Wohnung

gehört ein PKW-Stellplatz.

 

Öffentliche Versorgungsanlagen:

 

Strom, Wasserwerk, Asphaltstraße, Klimaanlage, Heizung: Zentrale Klima- und

Ventilationsanlage

 

Genehmigungen:

 

Baugenehmigung, Nutzungsgenehmigung, Energieklasse: A+

 

Extras:

 

Terrassen (5,82 m²), Parkplatz, Garten (24,62 m²)

 

Sonstiges:

 

Der Bezug der Immobilie kann kurzfristig nach Absprache erfolgen.

 

Wir bieten ausserdem Hilfestellung bei Behördenwegen, sowie eine Kaufabwick- lung in deutscher, englischer und kroatischer Sprache.

 

Eine Besichtigung der Immobilie ist nur mit Unterzeichnung des Maklervertrags zum Schutz des Eigentümers vor Besuchen durch nicht registrierte Personen und in Übereinstimmung mit dem Datenschutzgesetz und dem Immobilienmaklerge-

setz möglich.