Grundstück mit gültiger Baugenehmigung und Planung von vier Landhaus-Villen mit Pool

 

 

Details                                               Objekt-ID.7047

 

Standort:                                            Zaton/Sibenik - Okolica

Transaktionen:                                   Verkauf

Immobilien-Typ:                                 Baugrundstück m. Planung

Grundfläche:                                      2.290 m²

Entfernung zum Meer:                       1.300 m

 

Kaufpreis:                                         € 800.000,-

                                                           =========

 

 

Objektbeschreibung:

 

In Zaton, einem ruhigen Ort in der Nähe von Sibenik, befindet sich ein Baugrund-

stück mit vier rechtskräftigen Baugenehmigungen.

 

Das Grundstück hat eine Fläche von 2.290 m² und liegt vollständig innerhalb der

Wohnzone (S).

 

Es handelt sich um eine außergewöhnliche Investitionsmöglichkeit, da das Grund-

stück mit vier rechtskräftigen Baugenehmigungen verkauft wird, was einen sofort-

igen Baubeginn ohne zusätzliche Verfahren (ohne zus. Kosten) ermöglicht.

 

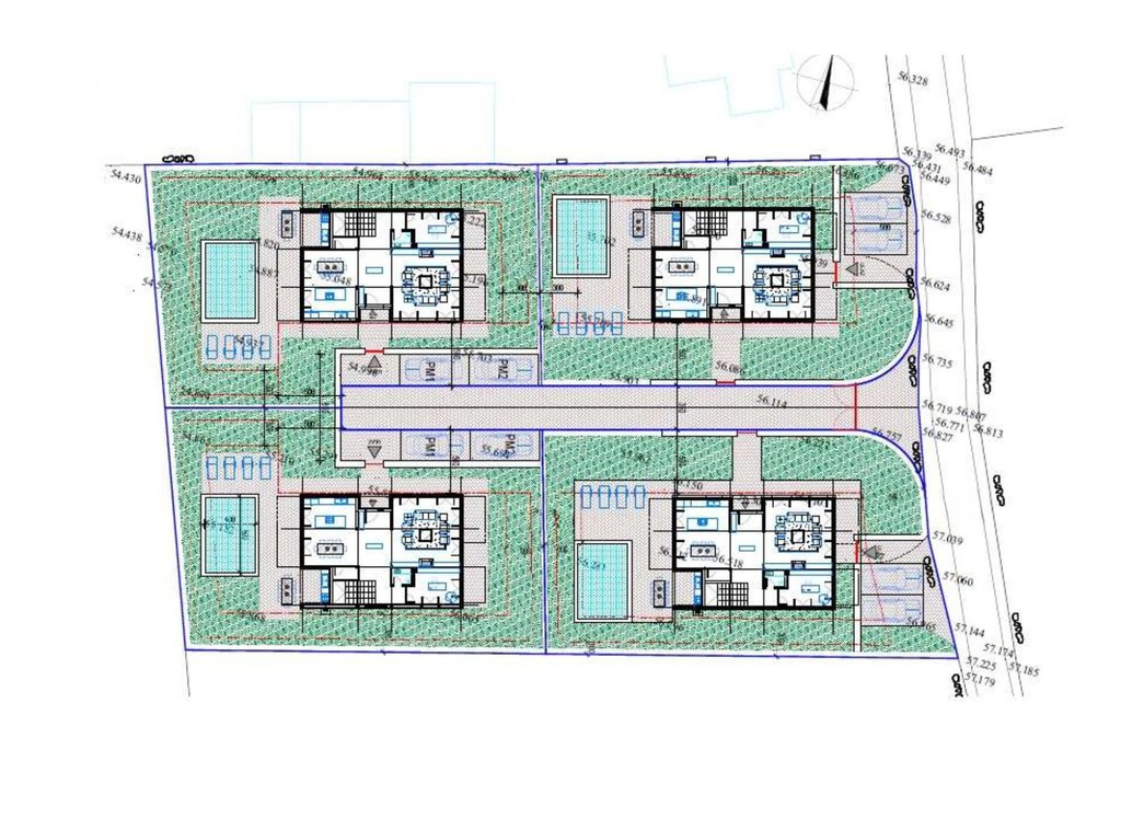
Das Projekt sieht den Bau von vier Landhaus-Villen mit Pools vor, die sorgfältig

positioniert sind, um maximale Privatsphäre und eine optimale Raumnutzung zu

gewährleisten.

 

Das Gelände ist eben und der Zugang erfolgt über eine asphaltierte Straße in

einer ruhigen und gepflegten Umgebung.

 

Alle Villen sind als eine architektonische Einheit konzipiert, mit besonderem

Fokus auf Funktionalität, Ästhetik und hohem Wohnkomfort.

 

Merkmale jeder Villa:

 

Wohnfläche (Netto): 185 m², Grundstücksfläche: 514 m², Pool: 32 m², vier luxur-

iöse Schlafzimmer, jeweils mit eigenem Bad und Ankleidezimmer, Arbeitszimmer,

Großzügiger Wohnbereich mit offener Küche, Sommerküche, Gäste-WC, Abstell-

raum, Private Parkplätze

 

Das Projekt ist ideal für Investoren, die ein "KAUFEN - BAUEN"- Modell suchen,

mit der Möglichkeit einer schnellen Rendite durch touristische Vermietung oder

den Verkauf der fertiggestellten Villen.

 

Das Grundstück befindet sich in ausgezeichneter Lage, in einem ruhigen Teil von

Zaton, in nur 1.350 m vom Ortszentrum und vom Meer entfernt.

 

Die Lage bietet die perfekte Balance zwischen Privatsphäre, guter Erreichbarkeit

und Nähe zu allen wichtigen Einrichtungen.

 

Öffentliche Versorgungsanlagen:

 

Asphaltstraße,

 

Genehmigungen:

 

Baugenehmigung/ Baugelände, Bauzone, Baugrundstück, Zweck: Wohnbebauung

 

Sonstiges:

 

Der Übernahme des Grundstücks kann kurzfristig nach dem Erwerb und nach Ab-

sprache erfolgen.

 

Wir bieten ausserdem Hilfestellung bei Behördenwegen, sowie eine Kaufabwick- lung in deutscher, englischer und kroatischer Sprache.

 

Eine Besichtigung der Immobilie ist nur mit Unterzeichnung des Maklervertrags zum Schutz des Eigentümers vor Besuchen durch nicht registrierte Personen und in Übereinstimmung mit dem Datenschutzgesetz und dem Immobilienmaklerge-

setz möglich.