Baugrundstück für Einfamilienhaus in ruhiger Lage von Tribunj

 

Details                                               Objekt-ID.7004

 

Standort:                                            Tribunj/Vodice

Transaktionen:                                    Verkauf

Immobillien-Typ:                                 Baugrundstück

Grundfläche:                                       616 m²

Entfernung zum Meer:                        450 m

 

Kaufpreis:                                          € 179.000,-

                                                            =========

 

 

Objektbeschreibung:

 

Gemäß dem Bebauungsplan der Gemeinde Tribunj, befindet sich das Grundstück

in der Bauzone M1 - 6b.

 

Es hat eine regelmäßige rechteckige Form, mit einer Breite von 17,50 m entlang

der Zufahrtsstraße und einer Länge von 29,00 m.

 

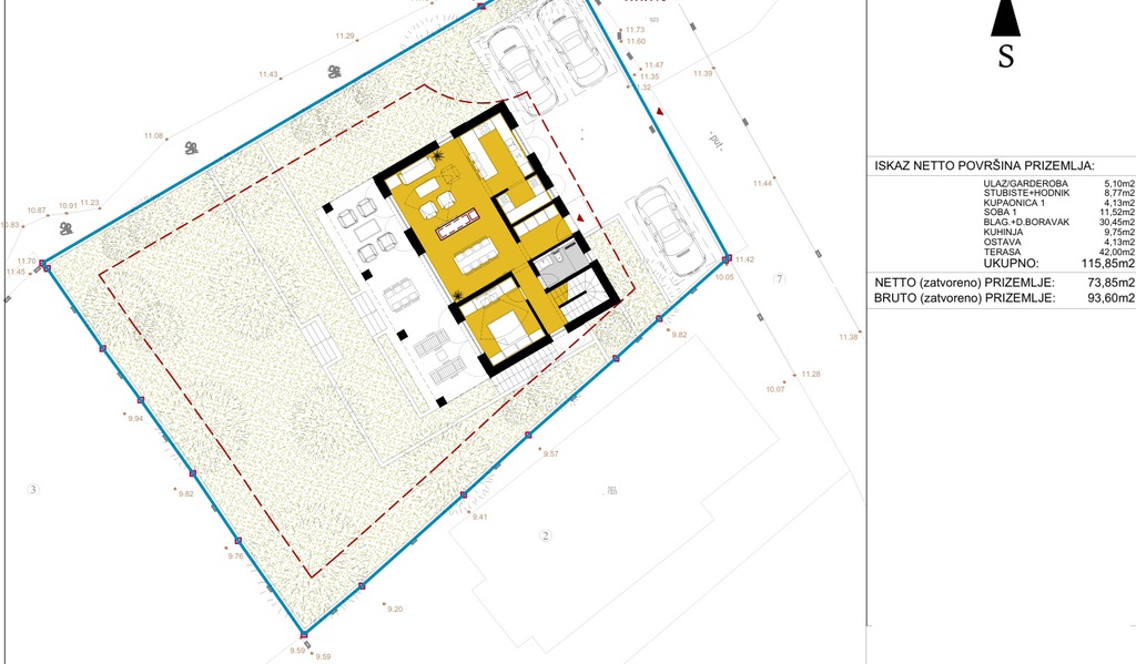
Die Baugenehmigung für ein Einfamilienhaus mit einer Bruttogeschossfläche von

227,75 m² befindet sich derzeit im Genehmigungsverfahren.

 

Das Grundstück ist größtenteils mit einer Betonmauer eingefasst, leicht abschüss-

ig und verfügt über eine öffentliche Zufahrt.

 

Die komplette Infrastruktur befindet sich direkt am Grundstück. Die Entfernung

zum Meer/Strand beträgt ca. 450 m, zum Ortszentrum sind es rund 500 Meter.

 

Baumöglichkeiten - Einfamilienhäuser

 

- Bauweise: Einzelhaus (SS) und Doppelhaus (D)

- Mindestfläche (SS): 350 m²

. Maximalfläche (SS)  1.000 m²

- Mindestfläche (D)     250 m² (entspricht 14 m Straßenfront)

- Maximalfläche (D)    420 m²

- Mindestbreite (D)     10 m

- Maximalbreite (D)    16 m

 

Öffentliche Versorgungsanlagen:

 

Strom, Wassererwerk, Öffentliche Zufahrt

 

Genehmigungen:

 

Baugenehmigung befindet sich derzeit im Genehmigungsverfahren

 

Sonstiges:

 

Die Übernahme des Grundstücks kann kurzfristig nach dem Erwerb und nach Ab-

sprache erfolgen.

 

Wir bieten ausserdem Hilfestellung bei Behördenwegen, sowie eine Kaufabwick- lung in deutscher, englischer und kroatischer Sprache.

 

Eine Besichtigung der Immobilie ist nur mit Unterzeichnung des Maklervertrags zum Schutz des Eigentümers vor Besuchen durch nicht registrierte Personen und in Übereinstimmung mit dem Datenschutzgesetz und dem Immobilienmaklerge-

setz möglich.