Villa in ruhiger Stadtlage von Vodice

 

Details                                              Objekt-ID.1002

 

Standort:                                           Vodice/ Sibenik-Knin

Transaktionen:                                  Verkauf

Immobilien-Typ:                                Haus/Villa

Schlafzimmer:                                   4

Badezimmer:                                     3

Gäste-WC:                                        1

Etagen:                                              2

Nutzfläche:                                        221,91 m²

Grundfläche:                                     659,00 m²

Parkplätze:                                        3

Energieklasse:                                  A

Baujahr:                                            2023

Entfernung zum Meer:                      2.000 m

 

Kaufpreis:                                        €  790.000,-

                                                          =========

 

 

Objektbeschreibung:

 

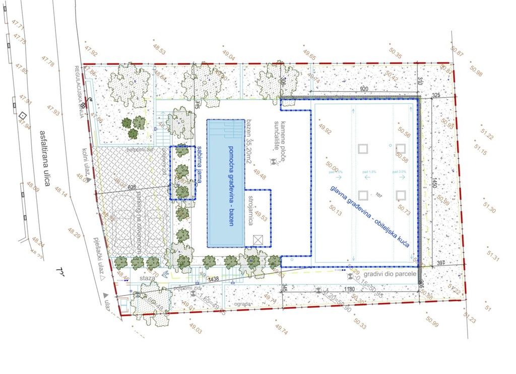
Villa in ruhiger Lage von Vodice. Ein freistehendes Objekt auf 2 Etagen (Erdge-

schoss + 1.Stock) mit einer gesamten Nutzfläche von 221,91 m²,. mit wunder-

schön angelegtem Garten, großer Terrasse, Aussenpool und Parkmöglichkeit..

 

Das Erdgeschoss der Villa besteht aus dem Haupteingang, Flur, Gäste-WC,

Waschküche, großzügigem Wohnzimmer mit Essbereich, Küche, Speisekammer

sowie einem großen Schlafzimmer mit eigenem Badezimmer.und begehbaren

Kleiderschrank.

 

Das Wohnzimmer und das Schlafzimmer verfügen über große Glasfronten mit Zu-

gang zur überdachten Terrasse, auf der sich ein Grillbereich, sowie ein Sonnen-

deck von 135 m² befinden, das mit einem "Infinity-Pool " (Überlaufbecken) von

32,50 m² verbunden ist.

 

Eine Innentreppe führt in das Obergeschoss, wo sich zwei äusserst großzügige

Schlafzimmer befinden.Eines der Zimmer verfügt über ein eigenes Badezimmer und beide haben Zugang zu einer überdachten Terrasse von 30 m², die einen

Blick auf das Meer und die Stadt Vodice bietet.

 

Im Obergeschoss befinden sich ausserdem ein Flur, ein Abstellraum und ein

weiteres Badezimmer.

 

Die Villa ist komplett möbliert, das Mobiliar ist bereits im Kaufpreis inbegriffen.Sie

ist sofort bezugsfertig und mit Sicherheitstüren,Aluminiumfenster mit Insekten-

schutz und elektrisch gesteuerten Rollläden, Echtglasgeländer, Fußbodenheizung

im gesamten Haus, Solarpaneelen auf dem Dach, sowie Klimaanlagen in allen

Schlaf- sowie im Wohnzimmer ausgestattet.

 

Das Grundstück hat eine Fläche von 659 m² und ist mit einem terrassenförmig an-

gelegtem Garten angelegt und, verfügt über ausreichend Parkmöglichkeiten, sowie

einem Kellerraum - Technikraum und Abstellraum mit einer Gesamtfläche von

25 m².

 

Die Villa ist  2.200 m vom Strand und 2.000 m vom Ortszentrum entfernt..

 

Öffentliche Versorgungsanlagen:

 

Strom, Wasserwerk, Asphaltstraße, Klimaanlage, Heizung: Zentrale Klima- und

Ventilationsanlage

 

Genehmigungen:

 

Baugenehmigung, Nutzungsgenehmigung, Energieklasse: A

 

Extras:

 

Garten, Grill, Schwimmbad, Terrasse (ca. 30 m²),  Parkplätze  3

 

Sonstiges:

 

Der Bezug der Immobilie kann kurzfristig nach Absprache erfolgen!

 

Wir bieten ausserdem Hilfestellung bei Behördenwegen, sowie eine Kaufabwick- lung in deutscher, englischer und kroatischer Sprache.

 

Eine Besichtigung der Immobilie ist nur mit Unterzeichnung des Maklervertrags zum Schutz des Eigentümers vor Besuchen durch nicht registrierte Personen und in Übereinstimmung mit dem Datenschutzgesetz und dem Immobilienmaklerge-

setz möglich.